Appartement Saint Nazaire 2 pièce(s) 51 m2
Référence de l'annonce : 4228Situé dans une copropriété bien entretenue dans le secteur prisé d’Océanis, cet appartement T2 de 51 m² offre des prestations de qualité et un agencement optimisé.
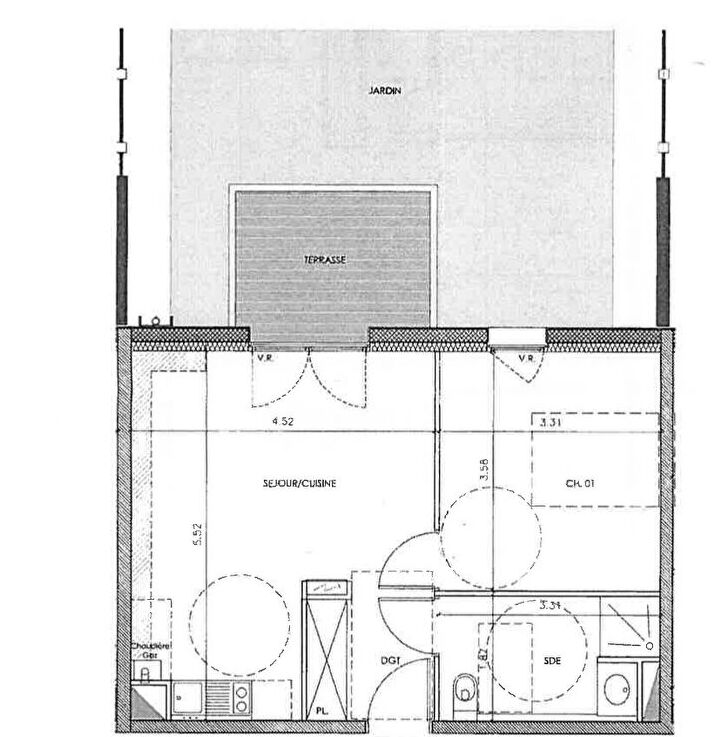
Il se compose d’une entrée desservant une chambre spacieuse avec salle de bain, ainsi qu’un WC indépendant.
Le séjour lumineux s’ouvre sur une cuisine ouverte, , offrant un espace de vie convivial et agréable. L’appartement bénéficie également d’un balcon, ainsi que d’une place de parking privative.
Bien soumis au statut de la copropriété
Pas de Procédure en cours
Charges annuelles : 600 euros
nombre de lots : 124 lots dont 59 lots d’habitation
Les informations sur les risques auxquels ce bien est exposé sont disponibles sur le site Géorisques : www.georisques.gouv.fr
Prix de vente à 212 490.00 euros frais d’agence inclus, à la charge de l’acquéreur, soit un prix net vendeur de 199 990.00 euros, et 6.25% de frais d’agence.
Maguy vous propose également d’autres biens sur Saint-Nazaire, Saint-Marc sur Mer, l’Immaculée, Pornichet, Saint-André des Eaux, La Baule-Escoublac, Ruban bleu, Centre-ville, Mairie, Sautron, Pertuishaud, Kerlédé, Porcé…
(6.25 % honoraires TTC à la charge de l’acquéreur.)
Copropriété de 124 lots – dont 59 lots habitation. (Pas de procédure en cours).
Charges annuelles : 600 euros.
Bilan énergetique et émission de gaz












